大公网

大公报电子版
首页 > 房产 > 地产 > 正文

中建璞园举办产品发布盛典 低总价+高品质吸引市场热烈关注

2023-08-01 15:25:01大公房产
字号
放大
标准
分享
  7月29日,位于朝阳区北部高端居住板块孙河生态别墅区的首个高品质住宅项目——中建璞园,举办了产品发布会盛典。活动中,中建智地有关领导,围绕中建璞园所具备的大品牌背书优势、区域发展增值优势,以及在打造产品过程中的匠心思考进行了详细介绍。
  活动当天,项目还邀请到主持人春妮和音乐唱作人马良到场助阵,分享了自己对于当下高品质人居生活样貌的理解,谈到了自己对中建璞园项目的喜爱。
  延续中建宸园品质 打造高端住区内的上车好盘

  近年来,由于中国居民生活水平的提升,购房人对居住产品所具备的区位价值、品牌保障,以及居住舒适性等方面都产生了更高的期待。实力央企中国建筑旗下的中建智地在这些方面颇有体会,近年来向市场推出了不少品质与口碑具佳的好产品。

  2022年,中建智地向市场推出别墅产品中建宸园,凭借极高的产品打造技艺,为望京这片有着高端居住需求却长期缺乏相应产品的板块,带来期待已久的高端居住盘,一经推出长期霸榜区域销售榜首,成为了近两年北京楼市豪宅市场的新招牌,向市场证明了自己在市场理解、产品打磨、高品质呈现方面的实力。

  此次,中建智地带来的中建璞园项目,属于低密洋房产品,户型涵盖74平米-125平米等多个面积段,精准切中了板块周边更大范围内对生活品质有更高要求的人群需求。更为难得的是,中建璞园延续了中建宸园高端别墅项目的品质理念,在园林规划、产品设计、设施配备等方面都保证了高端居住产品的风格,适配了项目所在孙河生态别墅区的高品质居住环境。

  孙河生态别墅区板块仅有的八个住宅规划,中建璞园是第一个落地的标杆性项目,此外这里还有教育、商业、医疗、养老等配套的明确规划。
  孙河生态别墅区是孙河别墅区饱和之后向南发展的全新高端居住板块,同样享有温榆河自然水系资源,以及河两岸广袤的城市森林。与此同时,由于紧邻两大成熟高端住区,中建璞园也享有周边区域历经30余年发展积累的高端生活配套,网红级松美术馆,国际一流休闲运动俱乐部尼克劳斯高尔夫俱乐部等众多高端休闲配套分布在周边。
  更值得一提的是,中建璞园周边教育资源极其丰富,涵盖从幼儿园到高中全部阶段。这里不仅有知名的公办中小学,还有全球顶尖国际学校,据了解白家庄小学以及北京八十中学两所重点学校已经确定进入中建璞园所在板块,将吸引大量重视孩子教育的精英家长选择居住于此。
  特别是随着北京市“十四五”规划的逐步落地,位于南部的孙河生态别墅区,有着距离望京CBD、中关村朝阳园、金盏国际合作服务区、第四使馆区等商务聚集区更近的地理优势,这些地区将有大量的高技术人才聚集,中建璞园所在的孙河生态别墅区正是他们上车高品质住区的最佳选择。

  低密、纯粹、精装、大牌  中建璞园产品亮点多
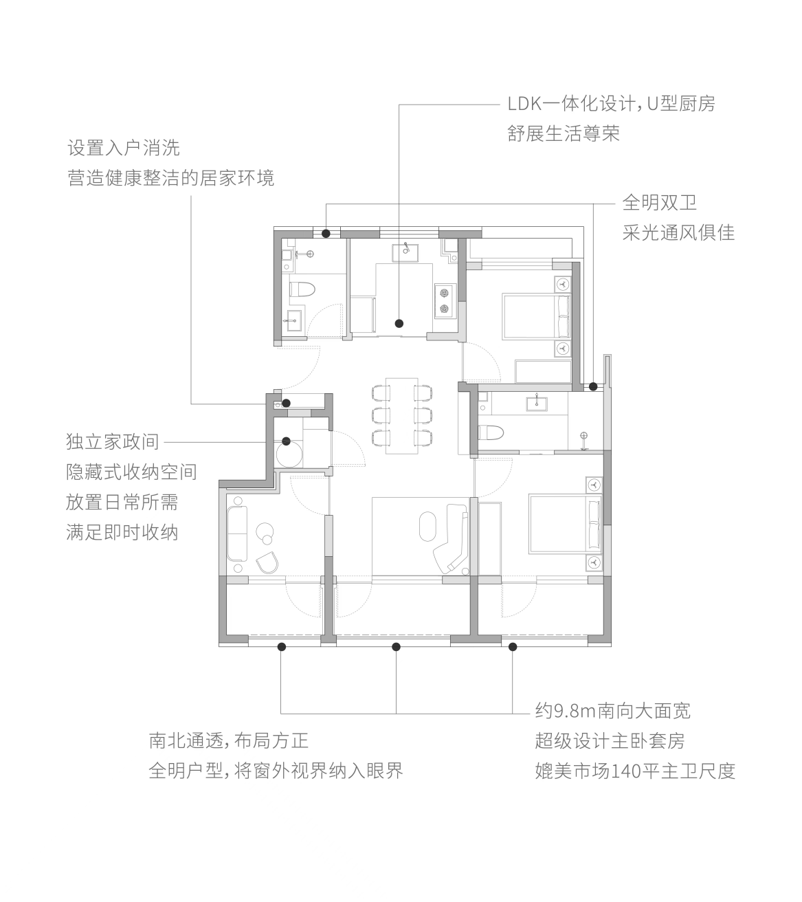
  中建璞园作为容积率只有1.5的纯洋房产品,全部为4-8层的洋房,延续别墅住区的低密舒适感,同时南向景观阳台的设置也进一步提升了房屋的使用面积。中建璞园使用率媲美市面上同类型产品的115平米户型产品,给业主带来了极高的购房性价比。
  99平米全明户型,产品南向9.8平米超大面宽,南北通透视野极佳。三室两厅两卫方正格局,每一个卧房彼此独立,给业主带来了别墅型产品所具备的私密性与舒适感。户型主客卫分离,客卫靠近玄关位置,客卫全明的设计也方便客人的到访使用。主卧室包含了独立卫生间,全明卫浴更享生活舒适。同时,宽敞的空间还可以设置步入式衣帽间。户内经典的LDK布局,不仅提升了室内的空间感,也拉近了业主居家时人与人的生活距离。更值得一提的是,室内还专门设置家政间,方便业主摆放日常用品和洗烘设备,作为目前朝阳区高配置产品之一,可谓是十分惊艳了。

  精装交付的中建璞园,在产品配置上也十分用心。智能家居系统,提供多种生活场景一键式切换,通过智能面板,不仅可以掌控照明、可视对讲,还能联系物业安防。房间的窗户采用德国旭格系统窗,隔声隔热,带来安静节能的居住体验。房屋配备大金中央空调、大金全热交换器、新风除霾系统等千万级别住宅才配备的四恒智能生活系统,让业主以低总价就能收获恒温、恒氧、恒静、恒洁的生活。
  中建璞园室内客厅顶部一改传统装修的回字形吊顶,采用金属龙骨和转角石膏,客厅主背景墙用略带肌理的墙布和木饰面、自然岩板层次叠搭,整体组合自然浑厚。厨房石英石台面,配备全系德国博世厨电让居家烹饪也变成一种享受。全明卫生间采用唯宝一体式智能马桶并具有隐藏式的水箱,避免异味的同时也营造出满满的科技质感。欧洲吉博力同层排水系统也出现在中建璞园项目,避免了上下水的噪音,给业主安静的生活。

  为了方便业主的日常生活,中建璞园还提供了诸多社区内部独享服务,如方便业主抵达周边地铁及商圈的接驳班车,包含后期可能建设的便利店、果蔬生鲜店、干洗店等服务的“微会所”,特别是小区的“四点半学堂”为孩子提供成长辅导,为不能提前下班的家长提供了极大的便利。
  我们不难发现中建璞园具有很多亮眼的特质,从区位到配套,从品牌到产品,从户型到设施,这些都构成了中建璞园的品质加成,完全符合当代都市改善家庭对品质生活的理解和认知。更为难能可贵的是,中建璞园还给买房置换的家庭提供了友好的买房门槛,让更多的居民拥有美好的生活。

  在住房产品快速回归居住属性本质的背景下,“产品主义”正在加速回归。近年来中建智地向市场推出的一个又一个品质口碑极佳的产品,无一不是在深入思考市场需求后,通过精心打磨每一个项目的产品品质,才收获了优秀的市场表现。这样的产品打造模式,也彰显了中建智地所具备的“单盘主义”思维。在中建智地的推动下,这种针对每一个项目的极致做法也引来了诸多同行的效仿,不再简单复刻系列成品,而是越来越定制化、精品化,逐渐形成良性的市场竞争氛围,彰显了责任央企的社会责任思考。
责任编辑:王杰

点击排行